Cyprus Properties for Sale - Altamira Real Estate (Cyprus)

8000 8200 +357 22 696500

Filter

Residential Buildings (share) - Agios Theodoros, Paphos

Paphos - Ref. PR44151Map

Residential building-Paphos Municipality-PR44151
Residential building-Paphos Municipality-PR44151
Residential building-Paphos Municipality-PR44151
Residential building-Paphos Municipality-PR44151
Residential building-Paphos Municipality-PR44151
Residential building-Paphos Municipality-PR44151
Direct Sale of Collateral
Save Share Print
Alert

By email

Residential Buildings (share) - Agios Theodoros, Paphos

Ref. PR44151

Maybe subject to VAT

40,000

Reserve Price

  • 1,269 m2 Land
  • Share for sale:


IMPORTANT NOTICE
This is a direct sale of a mortgaged property, in accordance with article 44H (3) of the Immovable Property (Transfer and Mortgage) Law of 1965, as amended from time to time.

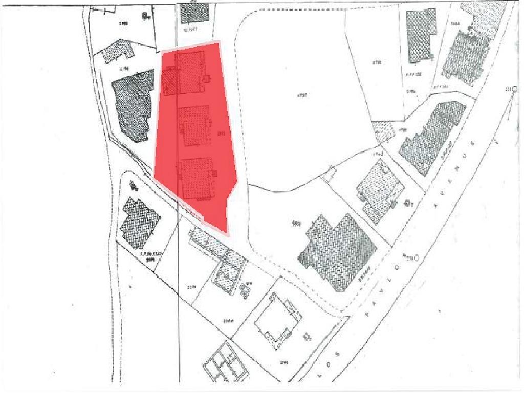
For sale is a 1/12 undivided share of land with an area of approximately 105 sq.m., located in the Quarter of Agios Theodoros, in the municipality of Paphos. It is located approximately 60 meters east of the Kings Avenue Mall and approximately 350 meters northwest of Agion Anargyron Avenue.

The property has an irregular shape with smooth flat ground surfaces, abutting the public road Michail Nikolaou (a cul-de-sac) on its eastern boundary, with a sidewalk on the southern boundary and a frontage of approximately 60 meters.

Within the property, a building has been constructed in the southern part of the plot consisting of a ground floor house, a two-story building in the central part of the plot consisting of a ground floor and an upper floor housing, and a two-story building with a semi-basement in the northern part of the plot, consisting of a ground floor and an upstairs housing, as well as a flat in the semi-basement.

The ground floor house in the southern part of the plot has a covered area of 146 sq.m. (approx.) and covered verandas of 13 sq.m. (approx.). The two-story building in the central part of the plot has a total covered area of 264 sq.m. (approx.) and covered verandas of 44 sq.m. (approx.). The two-story building in the northern part of the plot has a total covered area of 264 sq.m. (approx.) and covered verandas of 44 sq.m. (approx.).

The property falls within Residential Zone Κα5  with a building density of 100%.

Notes:

There are buildings that are not mentioned in the registration.

Rights/Servitudes:

The property is subject to usufruct rights.

Tenders submitted for an Amount below the Reserve Price shall be rejected.


THE CLOSING TIME FOR TENDER SUBMISSION IS 10:00 AM EVERY TUESDAY,
UNLESS OTHERWISE SPECIFIED

- - - - - - - - - - -

The Tenderer is exclusively responsible for conducting an inspection of the Property and to take all actions necessary to verify and / or be satisfied on the accuracy of the details of the Property (including planning particulars, boundaries a.o), and in addition to ascertain whether the sale of the Property is subject to VAT and the exact amount payable. In case of disagreement, it is the sole responsibility of the Tenderer to provide relevant evidence to satisfy Altamira Real Estate.

The Terms and Conditions found on the Tender form must be carefully considered prior to submitting an Offer. 

Any photographs, markings, outlines, or other design on the photographs are indicative and for illustration purposes only.

All planning particulars or other features of the property must be checked with the relevant authorities. Altamira Real Estate is not bound to accept the highest or any other offer submitted. 

The above price may be modified without any prior notice.

All information received from Altamira Real Estate (through the website and / or its operators and / or otherwise) is indicative and no guarantee is given for its completeness and / or validity.

 - - - - - - - - - - - - -

District: Paphos

Municipality: Paphos Municipality

Quarter: Agios Theodoros

Land Registry Information

Reference Reg. Nº Sheet/Plan Block Parcel Nº
PR44151 0/25299 51/100314 1 2195
  • Planning zone: Κα5
  • Building Coefficient: 100%
  • Coverage Coefficient: 50%
  • Maximum Floors Allowed: 3
  • Maximum Building Height (m): 13,50

Tender Form

The Tenderers may submit their Tenders within seven (7) calendar days from the publication date displayed on https://www.altamirarealestate.com.cy/ (hereinafter "Altamira Website"). In the case where it is decided that the period of seven (7) calendar days is not sufficient, the period may be extended by an announcement to that effect on Altamira Website as indicated above within the Tender Form Section of each property. Following the expiration of the submission period, if no Tender has been submitted, the property will remain on Altamira Website and the submission period shall be extended on a weekly basis. Otherwise, in the case where a Tender has been received, the property will be removed from Altamira Website.

Location

Open in Google Maps

(34.766670, 32.414749)

Energy Category

energy rating

Seller

COOPERATIVE ASSET MANAGEMENT COMPANY LTD

Associated promotions

Direct Sale of Collateral

See more properties