Κατοικία - Sotira Limni Villas - Σωτήρα, Αμμόχωστος
Ref. PR42209
Δεν υπόκειται σε ΦΠΑ
65.000
Ενδεικτική Τιμή
ΛΗΞΗ ΠΕΡΙΟΔΟΥ ΠΡΟΣΦΟΡΩΝ:
ΤΡΙΤΗ 4 ΝΟΕΜΒΡΙΟΥ, 10:00 a.m.
Διώροφη κατοικία ξύλινης κατασκευής τριών υπνοδωματίων στον Δήμο Σωτήρας σε απόσταση περί τα 500 μέτρα βόρεια του Δημαρχείου Σωτήρας και περί τα 450 μέτρα βορειοανατολικά του κέντρου του Δήμου.
Το ακίνητο απολαμβάνει εξαιρετικές προσβάσεις προς τους γειτονικούς δήμους. Επιπλέον, τοποθετείται κοντά σε πληθώρα υπηρεσιών και ανέσεων όπως υπεραγορές, εστιατόρια, μπαρ, καφετέριες, καταστήματα κλπ.
Η κατοικία με αρ. θύρας 1 ανεγέρθηκε περί το 2011 και αποτελεί μέρος του συγκροτήματος κατοικιών «Sotira Limni Villas». Αποτελείται από ανοικτού τύπου σαλόνι/τραπεζαρία, κουζίνα, ένα αποχωρητήριο ξένων στο ισόγειο και βεράντες. Στον όροφο διαθέτει τρία υπνοδωμάτια, με το κυρίως με en-suite ντους με αποχωρητήριο και δωμάτιο μπάνιου με αποχωρητήριο. Επιπλέον, διαθέτει αυλή.
Με βάση τον κατάλογο εμβαδών του οριζόντιου διαχωρισμού, το εμβαδό των εσωτερικών χώρων ανέρχεται σε 122 τ.μ. (περίπου), των καλυμμένων βεραντών σε 11 τ.μ (περίπου), των ακάλυπτων βεραντών σε 8 τ.μ (περίπου) και η αυλή είναι 185 τμ.
Αξίζει να σημειωθεί ότι η κατοικία κατέχεται
Τρόπος μεταβίβασης: Εκχωρητήριο έγγραφο.
Το ακίνητο πωλείται μέσω εκχώρησης πωλητηρίου εγγράφου, δυνάμει του οποίου όλα τα δικαιώματα του πωλητή θα μεταβιβαστούν στον νέο αγοραστή. Eνημερώνεστε ότι δεν έχει εκδοθεί τίτλος ιδιοκτησίας για το ακίνητο, και ο πωλητής δεν μπορεί να εγγυηθεί ότι θα εκδοθεί τίτλος ιδιοκτησίας. Συνιστάται να λάβετε προηγούμενη ανεξάρτητη συμβουλή σε περίπτωση που το ακίνητο θα αγοραστεί με χρηματοδότηση πιστωτικού ιδρύματος ή άλλως πως, καθότι ακίνητα χωρίς ξεχωριστό τίτλο ιδιοκτησίας και/ή υπό αυτές τις περιστάσεις, γενικότερα δεν γίνονται αποδεκτά ως εξασφάλιση για λήψη δανείου.
Για το εν λόγω ακίνητο, δεν υπάρχουν πληροφορίες ως προς την εκκρεμότητα οποιωνδήποτε πληρωμών σε σχέση με το πωλητήριο έγγραφο και/ή τις υποχρεώσεις του εργολάβου για την ανέγερση του ακινήτου στη βάση των εγκεκριμένων σχεδίων και/ή αδειών που απαιτούνται για την έκδοση ξεχωριστού τίτλου ιδιοκτησίας. Ο πωλητής δεν εγγυάται ότι θα και/ή μπορεί να εκδοθεί ξεχωριστός τίτλος ιδιοκτησίας για το ακίνητο. Ο πωλητής δεν εγγυάται οποιαδήποτε επιπρόσθετα ποσά που μπορεί να οφείλονται σε οποιοδήποτε πρόσωπο δυνάμει του πωλητηρίου συμβολαίου και/ή άλλως πως.
ΛΗΞΗ ΥΠΟΒΟΛΗΣ ΠΡΟΣΦΟΡΩΝ ΚΑΘΕ ΤΡΙΤΗ 10:00 ΠΜ,
ΕΚΤΟΣ ΚΑΙ ΑΝ ΟΡΙΣΘΕΙ ΔΙΑΦΟΡΕΤΙΚΑ
- - - - - - - - - - -
Ο Προσφοροδότης είναι αποκλειστικά υπεύθυνος για τη διενέργεια επιθεώρησης του Ακινήτου και τη λήψη όλων των απαραίτητων ενεργειών για την επαλήθευση ή/και την ικανοποίηση του για την ακρίβεια των στοιχείων του Ακινήτου (συμπεριλαμβανομένων των λεπτομερειών σχεδιασμού, συνόρων κ.ά), και επιπλέον για να εξακριβώσει εάν η πώληση του Ακινήτου υπόκειται σε ΦΠΑ και το ακριβές πληρωτέο ποσό. Σε περίπτωση διαφωνίας, είναι αποκλειστική ευθύνη του Προσφοροδότη να παράσχει σχετικά αποδεικτικά στοιχεία για να ικανοποιήσει την Altamira Real Estate.
Οι Όροι και Προϋποθέσεις που περιλαμβάνονται στο Έντυπο Προσφοράς πρέπει να λαμβάνονται σοβαρά υπόψη πριν από την υποβολή Προσφοράς.
Οποιεσδήποτε φωτογραφίες, σημειώσεις, περιγράμματα ή άλλα σχέδια πάνω στις φωτογραφίες είναι ενδεικτικές και μόνο για σκοπούς απεικόνισης.
Όλα τα κτηματολογικά και πολεοδομικά ή άλλα χαρακτηριστικά του ακινήτου πρέπει να ελέγχονται από τις αρμόδιες αρχές. Η Altamira Real Estate δε δεσμεύεται να δεχτεί την υψηλότερη ή οποιαδήποτε άλλη προσφορά που υποβλήθηκε.
Η πιο πάνω τιμή μπορεί να αναθεωρηθεί χωρίς προηγούμενη ειδοποίηση.
Όλες οι πληροφορίες που λαμβάνονται από την Altamira Real Estate (μέσω της ιστοσελίδας ή/και λειτουργών της ή/και άλλως πως) είναι ενδεικτικές και καμία εγγύηση δεν δίδεται για την πληρότητα ή/και εγκυρότητα αυτών.
- - - - - - - - - - - - - -
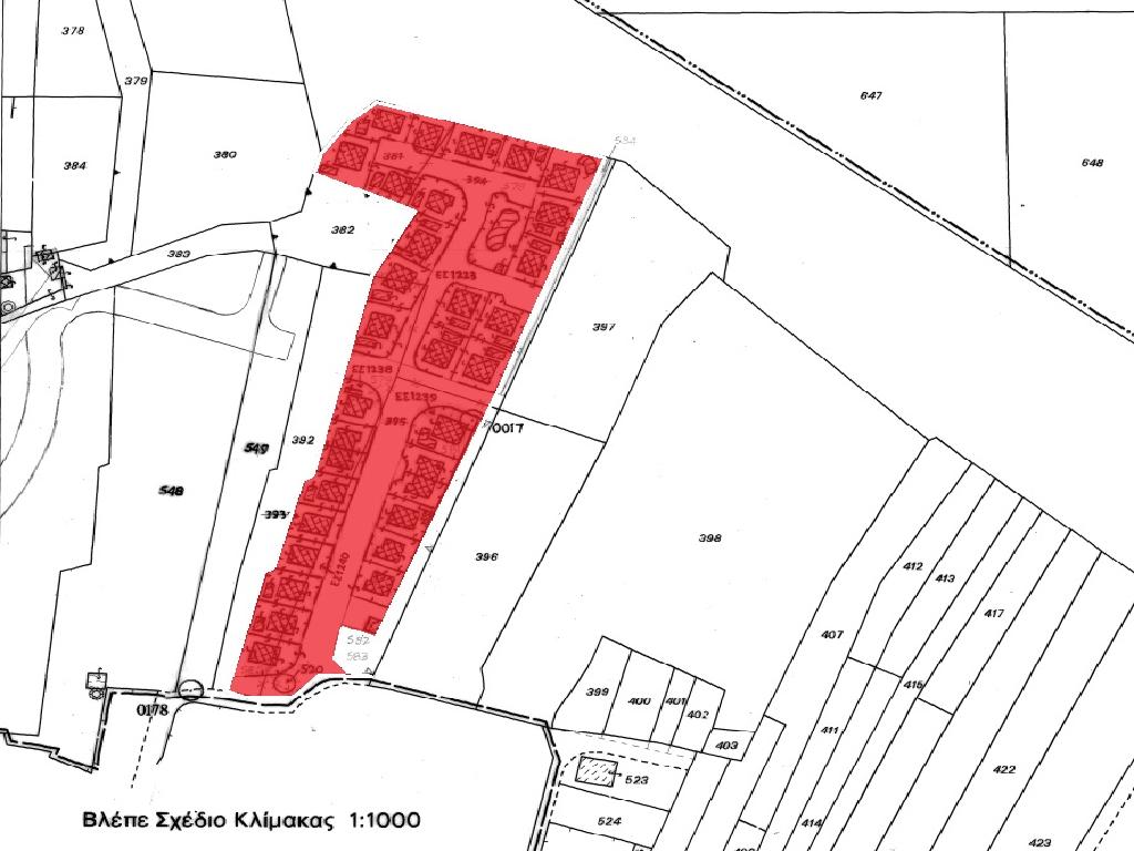
Επαρχία: Αμμόχωστος
Δήμος: Σωτήρα
Αριθμός θύρας: 1
| Αρ. Αναφοράς | Αρ. Εγγρ. | Φύλλο / Σχέδιο | Τμήμα | Αρ. τεμ, | Μερίδιο | 
|---|---|---|---|---|---|
| PR42209 | 0/1841 | 0/2-287-378 | 0 | 394 | 1/1 | 
| 
 | |||||
| Αρ. Αναφοράς | Αρ. Εγγρ. | Φύλλο / Σχέδιο | Τμήμα | Αρ. τεμ, | Μερίδιο | 
|---|---|---|---|---|---|
| PR42209 | 0/1842 | 0/2-287-378 | 0 | 381 | 1/1 | 
| Αρ. Αναφοράς | Αρ. Εγγρ. | Φύλλο / Σχέδιο | Τμήμα | Αρ. τεμ, | Μερίδιο | 
|---|---|---|---|---|---|
| PR42209 | 0/1844 | 0/2-287-378 | 0 | 520 | 1/1 | 
| Αρ. Αναφοράς | Αρ. Εγγρ. | Φύλλο / Σχέδιο | Τμήμα | Αρ. τεμ, | Μερίδιο | 
|---|---|---|---|---|---|
| PR42209 | 0/1912 | 0/2-287-378 | 0 | 395 | 1/1 | 
| Αρ. Αναφοράς | Αρ. Εγγρ. | Φύλλο / Σχέδιο | Τμήμα | Αρ. τεμ, | Μερίδιο | 
|---|---|---|---|---|---|
| PR42209 | 0/1915 | 0/2-287-378 | 0 | 393 | 1/1 | 
 
		SKY CAC LIMITED